2-комн., 56.67 м²

11 251 900 ₽Цена при 100% оплате193 000 ₽/м²

ЖК Просторы Крыма • Застройщик СЗ Просторы Крыма

Феодосия
декабрь 2029 г.
8 этаж из 8

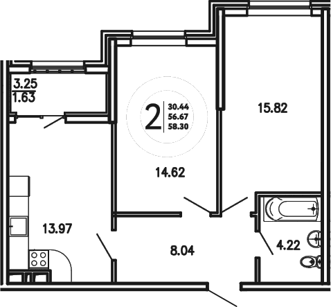
Планировка

О квартире

Тип квартиры2-комн.
Общая площадь56.67 м²
Площадь комнат14.62 м², 15.82 м²
Площадь кухни13.97 м²
Приведенная площадь (для расчета цены)58.3 м²
Этаж8/8 эт.

Дополнительно

ОтделкаПодчистовая
Высота потолков2.8 м
Санузлы1
Номер квартиры52
Срок сдачидекабрь 2029 г.

Условия покупки

Стоимость11 251 900 ₽

Расположение

Локация комплекса и инфраструктура рядом