2-комн., 50.84 м²

10 132 500 ₽Цена при 100% оплате193 000 ₽/м²

ЖК Просторы Крыма • Застройщик СЗ Просторы Крыма

Феодосия
декабрь 2029 г.
5 этаж из 8

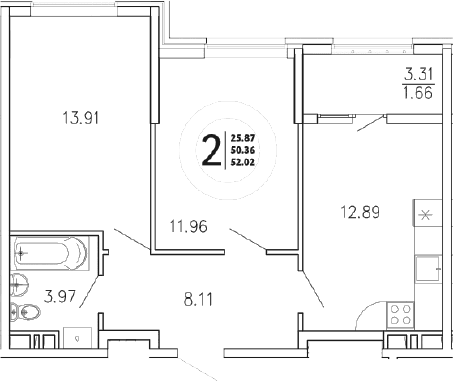
Планировка

О квартире

Тип квартиры2-комн.
Общая площадь50.84 м²
Площадь комнат13.91 м², 11.96 м²
Площадь кухни12.89 м²
Приведенная площадь (для расчета цены)52.5 м²
Этаж5/8 эт.

Дополнительно

ОтделкаПодчистовая
Высота потолков2.8 м
Санузлы1
Номер квартиры83
Срок сдачидекабрь 2029 г.

Условия покупки

Стоимость10 132 500 ₽

Расположение

Локация комплекса и инфраструктура рядом