3-комн., 82.2 м²

15 815 580 ₽Цена при 100% оплате186 000 ₽/м²

ЖК Просторы Крыма • Застройщик СЗ Просторы Крыма

Феодосия
декабрь 2029 г.
2 этаж из 8

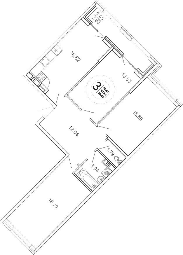
Планировка

О квартире

Тип квартиры3-комн.
Общая площадь82.2 м²
Площадь комнат13.63 м², 15.69 м², 18.29 м²
Площадь кухни16.82 м²
Приведенная площадь (для расчета цены)85.03 м²
Этаж2/8 эт.

Дополнительно

ОтделкаПодчистовая
Высота потолков2.8 м
Санузлы2
Номер квартиры62
Срок сдачидекабрь 2029 г.

Условия покупки

Стоимость15 815 580 ₽

Расположение

Локация комплекса и инфраструктура рядом